Sommaire
Conceptions de la maison
Les conceptions de maisons que nous vous présentons vous inspireront dans la construction de telle manière que vous puissiez choisir entre des styles de structures modernes, préfabriquées, en bois, en béton, avec des structures métalliques ou une combinaison de plusieurs matériaux, visualisez les plans de maisons et les finitions extérieures telles comme couleurs et textures afin que vous ayez les meilleures idées de construction.
Idées de conception de maison, trouvez votre modèle de style et de plan
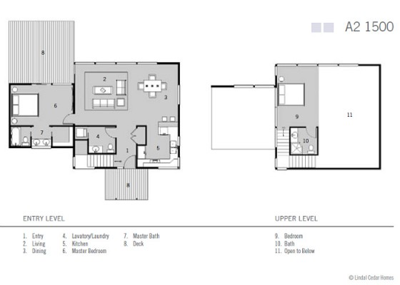
1. Maison construite en bois avec deux étages de 88 M2 (8 x 11 mètres)

Au premier étage, l’espace social a été construit avec un petit salon-salle à manger, en arrière-plan la cuisine avec un espace attenant pour regarder la télévision (Salon), le design intérieur du premier niveau serait parfaitement harmonisé avec un seul style.

Le deuxième étage a trois chambres et une salle de bain complète, la pièce principale a un dressing.
Voyons ensuite la façade de la maison:

Dans la conception de la façade, des lattes de bois placées horizontalement, un mur d’entrée principal avec des briques de parement et des toits en croupe ont été utilisés.
2. Conception de maison élégante avec une belle combinaison de matériaux de façade

La conception de la maison a été construite sur une superficie de 8,30 (largeur) x 25,50 (longueur) mètres, au premier étage se trouve la zone sociale avec le salon qui offre une vue sur les jardins intérieurs et la terrasse, la voiture le port a de la place pour deux voitures.

Au deuxième étage, il y a quatre chambres et un petit salon situé en face de l’escalier, toutes les pièces sont reliées à une circulation linéaire en raison de la forme du terrain, l’éclairage naturel et la ventilation se font sur les côtés, ce qui permet d’avoir ambiances lumineuses idéales pour la décoration intérieure.

Le design moderne de la façade se distingue par un toit en pente, la combinaison des couleurs du premier et du second avec des tons beiges et gris fait ressortir les volumes. Il serait possible de construire cette maison avec du béton ou du bois ou de combiner des matériaux dans sa structure.
Plus de modèles de maisons de types modernes et élégants:
3. Conception de maisons petites et simples: constructions de quelques mètres carrés construits

La superficie construite est de 140 mètres carrés, la zone sociale de la maison a un plafond à hauteur et demie qui permet d’avoir la sensation d’une plus grande espace, elle a un toit formé par deux plans en pente, elle a de grandes fenêtres qui atteignent les tapicheles qui permettent d’avoir un excellent éclairage naturel.
Cette maison simple et belle dispose de deux chambres chacune avec une salle de bain incluse.

Vous pouvez revoir complètement la conception de cette maison à partir de: Petite maison avec des toits à pignon, vous y trouverez des solutions pour deux et trois chambres.
Voici la visualisation à l’intérieur avec des plans de maisons en 3D avec leurs façades respectives qui vous inspireront:
4. Maquette d’une maison en béton sur un terrain carré de 10,70 x 12,60 mètres.

Le premier étage de cette maison a une répartition intéressante des environnements, bien que nous trouvions l’espace social composé du salon, de la salle à manger et de la cuisine, un espace «séparé» a été créé pour l’inclusion d’une chambre située très près du entrée principale, ce qui lui confère une plus grande autonomie fonctionnelle.
Le deuxième étage a trois chambres et un espace pour les services d’hygiène a été créé qui a été divisé en deux, un espace (le plus grand) qui comprend une baignoire et une douche ainsi que deux lavabos, le deuxième espace avec toilettes et toilettes .


Vous pouvez appliquer d’autres couleurs dans la conception de la façade ou exposer le béton dans sa couleur naturelle largement utilisée dans les conceptions de maisons modernes, plus dans: Plans de maison simples à deux étages construits sur un terrain carré.
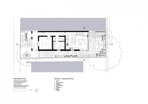
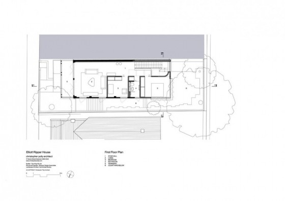
5. Conception de maison moderne qui s’ouvre sur l’extérieur
Si vous aimez les espaces ouverts et confortables, ce modèle de maison vous inspirera dans la construction, les fenêtres s’ouvrent sur les jardins ou les patios extérieurs vous permettant de la relier à la nature.

Dans la décoration intérieure, la pièce est située au premier étage et dispose d’une grande fenêtre en forme de «L» ou fenêtre d’angle, cela permet une intégration totale avec le jardin, elle est idéale pour les zones où il est nécessaire de diriger les visuels vers l’intérieur.
Il a une circulation linéaire qui se distribue aux trois pièces principales du premier niveau

Au deuxième étage, nous trouvons une chambre, un salon (nous pensons que cela pourrait devenir une deuxième chambre), il dispose également d’une salle d’étude.
Pour le développement de ce projet, il est nécessaire de disposer d’un terrain permettant de créer des espaces tels que des jardins à l’avant, à l’arrière et un espace libre latéral.

La décoration intérieure est mise en valeur grâce à l’entrée d’une lumière naturelle abondante, les fenêtres sont encadrées de bois et celles du deuxième niveau s’ouvrent de manière à charnière, pour plus de détails sur ce projet entrez: Petite maison de deux étages avec plans.
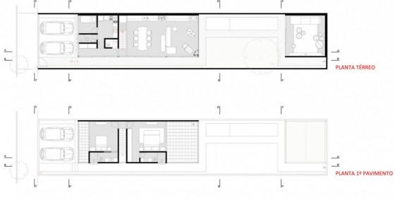
6. Structure en acier dans une maison étroite

La maison mesure 7 mètres de large (voir pour le terrain 5 mètres de large), dans les zones étroites, il est très possible qu’il soit nécessaire de créer une circulation linéaire pour les différents environnements; dans ce cas, la conception du premier niveau a une grande salle à manger, une cuisine et un espace pour deux voitures à l’avant.
Parce qu’une piscine avec une grande terrasse a été conçue au centre, la maison a une longueur de 37,00 mètres, qui pourrait être raccourcie si la zone de loisirs n’est pas construite.
Le deuxième étage comprend deux chambres avec chacune une salle de bain.

Le design de la maison est sobre et moderne, met en évidence le matériau de construction utilisé dans sa structure comme l’acier, nous avons analysé ce design et vous pouvez le voir dans: Maison construite sur un terrain long et étroit.
7. Conception et plan d’une maison de plain-pied avec de grandes fenêtres et de hauts plafonds

La maison a un zonage simple et fonctionnel, la partie avant est composée d’un grand salon – salle à manger avec de grandes fenêtres qui vont du sol au plafond; à l’arrière, une chambre a été conçue avec un jacuzzi et une salle de bains visibles, dans ce cas, la cuisine a été séparée en un environnement.

L’utilisation de grandes fenêtres sur trois de ses côtés se distingue comme matériau de construction, les structures en béton ou en acier restent comme matériau de structure, le plafond a été surélevé d’environ un mètre au-dessus des linteaux; Découvrez les nouvelles propositions en entrant: Plans de maison à un étage que nous avons publiés dans Construye Hogar.
8. Style moderne avec façade en panneaux d’une construction économique

Au premier étage, nous trouvons la conception du salon avec accès direct à une grande terrasse, la conception de la cuisine avec l’îlot est linéaire; Cette construction est possible sur des terrains délimités puisque l’éclairage naturel se fait par l’avant et l’arrière.
Au deuxième étage, nous trouvons deux chambres, la principale a une salle de bain et un espace pour une grande coiffeuse ou, à défaut, un petit coin bureau.


Le placement de structures virtuelles faites avec des cadres en fer et des tiges en bois permet de filtrer la lumière du soleil, la façade a un style moderne avec le placement de panneaux, plus de photos dans: Maison moderne de deux étages avec des finitions simples.
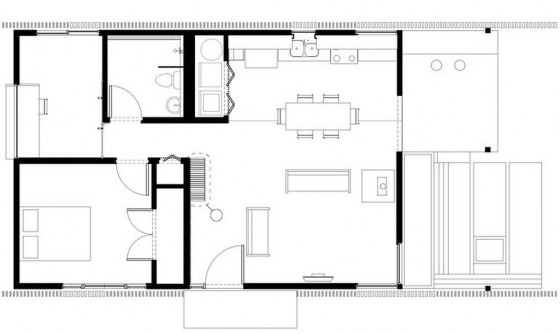
9. Conception d’une petite maison à un étage avec 70,00 m2 construits

Maison pratique et belle avec un niveau et trois chambres, salon et cuisine séparés (répartition typique des environnements); la pièce principale possède une salle de bain, dispose d’un puits de lumière qui permet d’éclairer une chambre secondaire (01).
Une petite maison qui peut être construite sur un terrain avec des limites puisque l’éclairage naturel des pièces se trouve à l’avant et à l’arrière de la maison ainsi qu’un puits de lumière que nous avons vu dans le plan d’étage

10. Utilisation de systèmes de construction modernes dans la conception des maisons

Le projet de l’Université du Colorado présente deux pièces et un salon, une salle à manger et une cuisine dans le même environnement, cet espace social est directement relié à une grande terrasse.
La chose intéressante à propos de la proposition architecturale est que bien que la construction soit en béton, elle a été recouverte de panneaux d’aluminium et de tiges de bois. De cette façon, le soleil est réfléchi et les tiges de bois contiennent l’air, il est idéal pour les endroits secs et chauds. climats; dans d’autres types de climats, la construction est réalisable sans ce type de revêtement.

Détails de cette proposition intéressante de: Plan et façade de la maison recouverte de tiges de bois.
Alternative: conception d’une maison fermée à l’extérieur avec un haut mur
Ce design est idéal lorsque vous souhaitez orienter les visuels vers l’intérieur et avoir un maximum d’intimité, …
N’oubliez pas de partager l’article sur Facebook et Instagram ?
