Sommaire
Petites maisons
Pour générer des idées, nous avons fait une sélection de modèles de maisons avec peu de surface construite, avons des structures modernes et utilisons différents matériaux de construction idéaux pour les parcelles de petite et moyenne taille, de cette façon, vous découvrirez quels matériaux vous pouvez utiliser dans les structures, les murs et finitions pour avoir une belle maison fonctionnelle.
Idées de petites maisons
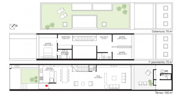
1. La petite maison se distingue par sa simplicité et son harmonie

Il est intéressant de voir comment les architectes ont choisi des matériaux de construction simples et bon marché pour créer un design harmonieux; Des panneaux perforés pour filtrer la lumière du soleil ainsi qu’une petite clôture périphérique avec un cadre et un treillis métallique sont quelques-uns des éléments que l’on peut voir dans cette maison construite sur un terrain de seulement 5 mètres de large sur 30 mètres de long.

Voyons la distribution dans les plans d’étage:

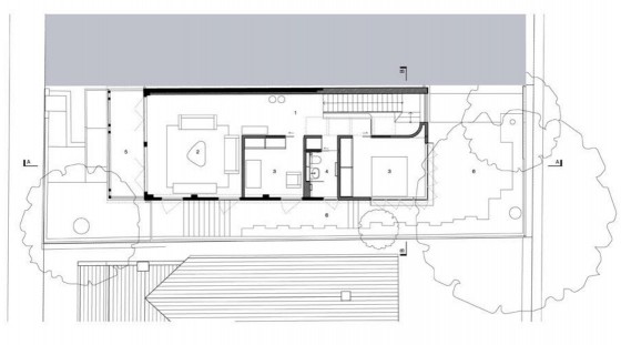
2. Conception de petite maison: environnements intérieurs agréables malgré l’espace limité disponible

Cette maison peut être construite sur un terrain avec des limites des deux côtés puisque l’éclairage et la ventilation se font à la fois de l’avant et de l’arrière, la superficie construite est de 64 mètres carrés, mais avec des espaces verts, un terrain de 10 x 20 serait nécessaire.
Voyons le plan de la maison:

3. Matériaux tels que le béton et l’acier dans la conception d’une maison économique

Dans cette belle maison, il n’a pas été nécessaire de carreler les murs ou de placer des sols en céramique, les murs ont des briques de béton apparentes et des sols polis du même matériau, il a été combiné avec l’acier des barres extérieures, des mains courantes et des cadres de fenêtres; Le résultat est une belle maison construite sur une superficie de 185 mètres carrés, l’application du même style et des matériaux pouvant être reproduits dans des maisons à construire sur des parcelles plus petites.
4. Matériaux recyclés pour construire des maisons dans un petit espace
Pour cette maison à un étage peu coûteuse, des matériaux recyclés ont été utilisés dans sa construction, par exemple la structure principale est composée de deux conteneurs et pour la façade en aluminium ondulé recyclé, au lieu de carreaux dans les salles de bains, du verre recyclé correctement traité a été utilisé.
Une autre ressource pour économiser est l’utilisation sur les murs et les planchers de panneaux OSB qui sont un conglomérat de copeaux pressés, dans l’ensemble, la maison est facile à construire et respectueuse de l’environnement.


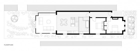
5. Modèles de petites maisons avec style à l’intérieur et à l’extérieur

La maison dispose de deux chambres, un grand salon – salle à manger et cuisine sur une superficie de 92 mètres carrés, car le terrain est étroit, une circulation linéaire a été conçue entre les pièces (voir l’entrée principale de la partie supérieure droite du plan de la petite maison).

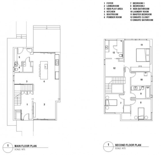
6. L’importance d’une maintenance et d’une réparation faciles
La conception de la maison à deux étages est entièrement construite en bois avec une structure métallique, les sols sont en béton poli sur les deux niveaux, elle a été conçue de manière à ce que l’entretien de la maison soit facile et économique.
Le premier étage est purement social, depuis l’entrée principale (1) on trouve un hall ou un hall, puis le salon (2) la salle à manger (4) et la cuisine; Il est intéressant de voir qu’après être entré dans la maison, nous pouvons aller directement au deuxième niveau où se trouvent les trois chambres sans avoir à traverser les environnements sociaux.

Pour plus d’informations sur cette conception, veuillez entrer: Maison à deux étages construite avec des matériaux bon marché et un entretien facile.
7. Conception d’une petite maison de 32 m² à construction rapide
Cette petite maison peu coûteuse d’une superficie de 32 mètres carrés est un exemple de la façon de répartir les environnements sociaux et privés et d’être pleinement fonctionnelle; Il a le concept de fabrication et d’assemblage faciles.
Pour la construction de cette maison, des panneaux OSB ont été utilisés ainsi que le modèle de maison N ° 4 que nous avons vu, l’espace social a une connexion directe avec l’extérieur et un grand éclairage naturel grâce aux portes coulissantes en verre.


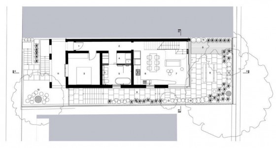
8. Belle maison avec de grandes fenêtres et des toits à pignon
La maison a été construite sur une superficie de 160 mètres carrés, au premier étage se trouve la zone sociale et une chambre, au deuxième niveau deux autres chambres et un salon; L’une des caractéristiques de la maison est que les pièces s’ouvrent sur l’extérieur, ayant une connexion directe avec les jardins.
Voyons les plans des petites maisons du modèle numéro 8:


Découvrez plus de cette proposition intéressante de: Petite maison de deux étages qui s’ouvre sur l’extérieur.
9. Modèle de maison avec structure à ossature A
La maison a une structure en bois et de grandes ouvertures couvertes par des fenêtres teintées, construites sur 100 mètres carrés; nous avons au premier niveau la zone sociale et au deuxième niveau la zone privée avec la conception de trois chambres, la principale a une belle vue sur les jardins intérieurs.
Dans les plans, nous pouvons voir que les environnements sont ouverts (salon, salle à manger, cuisine) et sont connectés directement avec la terrasse.


10. Style moderne et avant-gardiste

Le logement a une structure métallique solide et se trouve dans une petite zone de 45 mètres carrés, l’intérieur a les pièces ouvertes les unes aux autres, pratiquement délimitées par des meubles, de cette façon, nous avons un petit salon, une cuisine avec îlot et une chambre ; toutes les pièces principales ont accès à une grande terrasse.

Pour plus d’idées, rendez-vous sur: Idées pour la construction de petites maisons où vous trouverez plus de solutions pour la distribution des environnements d’usine et des conceptions de façade.
N’oubliez pas de partager l’article sur Facebook et Instagram ?
